5 locali in vendita

Borgo San Lorenzo, Via Francesco Pecori Giraldi
€ 198.000
5 locali 5 locali
120 Mq 120 Mq
2 bagni 2 bagni

5 locali in vendita

Borgo San Lorenzo, Via Francesco Pecori Giraldi

Descrizione annuncio

BORGO SAN LORENZO: L'immobile si trova al primo piano di una palazzina degli anni'70.

Posizione centrale (NO centro storico) e strategica, ottima per spotarsi comodamente a piedi senza dover per forza usare un mezzo di trasporto.

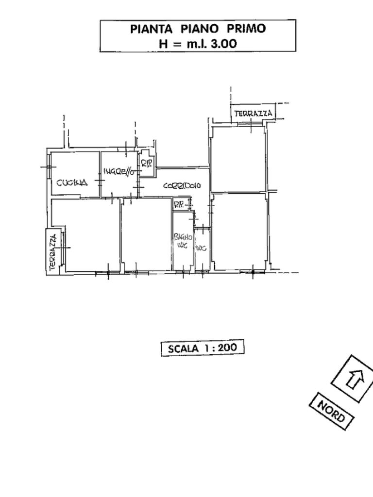
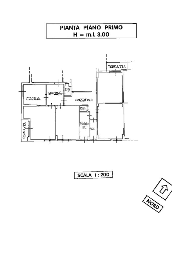
Appartamento composto da ingresso, soggiorno, cucina, disimpegno, doppi servizi, tre camere da letto, e due terrazze.

Internamente sono sicuramente necessari interventi di ammodernamento e/o ristrutturazione.

Della casa oltre alla luminosità, si apprezza la grande metratura, che permette una più moderna ridistribuzione degli spazi, creando per esempio una zona giorno open-space.

Riscaldamento centralizzato.

Nella palazzina è presente l'ascensore.

Libero da subito.

Per essere qualsiasi informazione e per fissare un appuntamento, contattateci al numero 0558458093, inviateci un messaggio WhatsApp al numero 0558496287, oppure una mail all'indirizzo che trovate nei nostri recapiti.

Mostra tutto

Nelle vicinanze

Trasporto pubblico Trasporto pubblico
Borgo San Lorenzo
Borgo San Lorenzo
1,1 Km
Borgo San Lorenzo Piazza del Poggio
Borgo San Lorenzo Piazza del Poggio
200 m
Borgo San Lorenzo Rimorelli
Borgo San Lorenzo Rimorelli
750 m
Ricariche auto elettriche Ricariche auto elettriche
COOP Centro Commerciale Mugello | EnelX
760 m
Scuole Scuole
ICS Primaria Dante Alighieri
70 m
IC Statale Secondaria I grado Giovanni della Casa
430 m
Scuole
460 m
Giotto Ulivi
1,1 Km
Farmacia Farmacia
Farmacia Roselli
50 m
Farmacia Monti
800 m
Farmacia Comunale Farmapiana
810 m
Ospedali Ospedali
Ospedali
1,3 Km
Pronto Soccorso Ospedale del Mugello
1,4 Km
Supermercati Supermercati
Conad
1,5 Km
Negozi Negozi
Forno
300 m
Bar Bar
Bar pasticceria Bencini
200 m
Passaguai
270 m
Caffe' Mediceo
660 m
Ristoranti Ristoranti
ConVivio
360 m
Mostra tutto

Caratteristiche

Rif.:
61187446
Piano:
1 di 3 con ascensore (Piano basso)
Terrazzi:
2
Camere da letto:
3
Arredamento:
Assente
Condizionamento:
Assente
Mostra tutto
Prezzo Prezzo
€ 198.000
Rata mutuo Rata mutuo
€ 941 / mese
Proponi il tuo prezzoProponi il tuo prezzo
Immobile valutato con T·Valuta

Classe Energetica

G
G
G
G
G
G
G
G
G
EP globale non rinnovabile:
153.99 kW h/m² anno
EP globale rinnovabile:
9.85 kW h/m² anno
EP invernale del fabbricato:
EP estiva del fabbricato:
Anno di costruzione:
1970
Riscaldamento:
Centralizzato
Tipo impianto:
A radiatori
Tipo alimentazione:
Metano

Ti interessa visionare l'immobile?

Fissa un appuntamento  Fissa un appuntamento

Richiedi informazioni

Clicca su Leggi per aprire l'informativa
* Questi campi sono obbligatori

Calcola il tuo mutuo

Semplice e senza impegno
Anticipo

( % )
Mutuo

( % )

pochi semplici passi

inserisci i tuoi dati
Questionario completato
Grazie per aver richiesto un appuntamento senza impegno con un nostro Consulente del Credito e Assicurativo.

Hai inserito correttamente tutti i dati necessari e a breve riceverai una e-mail con un link da convalidare per inviare i tuoi dati.
Affiliato
Studio Mugello Sas
Via Mazzini, 66 50032 Borgo San Lorenzo (FI)

Il nostro staff


  • Alessio Cenisio
    Affiliato
Via Mazzini, 66 50032 Borgo San Lorenzo (FI)
Zona: Mugello-Borgo San Lorenzo
Mostra su mappa
Orari: lun/ven 9.00-13.00; 15.30-20.00; sabato 10.00-13.00; 15.30-19.00; dom su appuntamento
Affiliato
Studio Mugello Sas
Via Mazzini, 66 50032 Borgo San Lorenzo (FI)

2026 Tecnocasa Franchising S.p.A. - P. IVA 08365160152 - Via Monte Bianco 60/A 20089 Rozzano (MI). Ogni agenzia ha un proprio titolare ed è autonoma. Privacy policy | Policy utilizzo | Cookie policy