Villa a schiera in vendita

Borgo San Lorenzo, Località Figliano Ferracciano - Figliano
€ 380.000
4 locali 4 locali
135 Mq 135 Mq
2 bagni 2 bagni

Villa a schiera in vendita

Borgo San Lorenzo, Località Figliano Ferracciano - Figliano

Descrizione annuncio

BORGO PRESSI: Ci troviamo vicino la frazione di Luco di Mugello, più precisamente siamo nella zona di Figliano.

Ideale per chi cerca una soluzione nella tranquillità della campagna rimanendo però non troppo distante dai servizi.

Ci troviamo a circa 1 Km da Luco di Mugello, circa 2,5 Km da Scarperia, e a circa 4 Km da Borgo San Lorenzo.

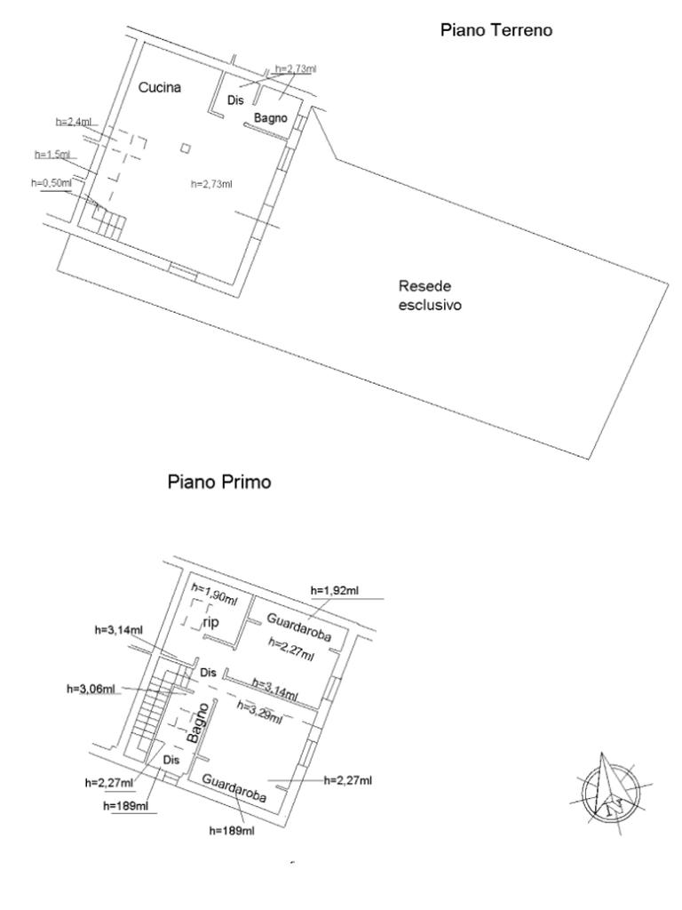
La casa è un terratetto di nuova realizzazione.

Una volta fatte le ultimi finiture sarà subito pronto per essere abitato.

La casa è totalmente improntata al risparmio energetico infatti si attesta nella più alta classe di efficenza energetica A4.

Alcune caratteristiche principali sono il riscaldamento radiante a pavimento con pompa di calore, cappotto termico, infissi con vetrocamera, e pannello fotovoltaico.

Dal giardino privato entriamo al piano terra dove si sviluppa la zona giorno; un'ampia zona openspace con antibagno e bagno.

Salendo poi la scala si accede al primo piano composto dal secondo bagno, un disimpegno, due camere da letto e da un ampio ripostiglio finestrato (velux) che potrebbe adattarsi anche come guardaroba, studiolo o perchè no anche una camerina di emergenza.

Una tettoia ricopre la zona del posto auto (ci stanno 2 auto comodamente); sopra la tettoia sono installati i pannelli fotovoltaici.

Sono già presenti le colonne di ricarica per auto elettriche.

Un ottimo compromesso per quanto riguarda prestazioni, comfort abitativo, tranquillità, e vicinanza ai servizi.

Per qualsiasi informazione e per fissare un appuntamento, contattateci al numero 0558458093, inviateci un messaggio WhatsApp al numero 0558496287, oppure all'indirizzo mail che trovate nei nostri recapiti.

Mostra tutto

Nelle vicinanze

Trasporto pubblico Trasporto pubblico
Panicaglia Centro
Panicaglia Centro
2,1 Km
Panicaglia Centro_V
Panicaglia Centro_V
2,1 Km
Scuole Scuole
Scuole
1,1 Km
Farmacia Farmacia
Farmacia
1,0 Km
Supermercati Supermercati
Market Basket
1,0 Km
Negozi Negozi
Faini
940 m
Bar Bar
Bar Jimmy
1,2 Km
Ristoranti Ristoranti
Bar Pizzeria Valeri
1,6 Km
Fattoria il Palagio
2,2 Km
Il Rustico
2,4 Km
Mostra tutto

Caratteristiche

Rif.:
61191399
Piano:
1 di 1 (Piano su più livelli)
Posti auto:
2
Camere da letto:
2
Arredamento:
Assente
Condizionamento:
Assente
Mostra tutto
Prezzo Prezzo
€ 380.000
Rata mutuo Rata mutuo
€ 1.791 / mese
Spese annue Spese annue
€ 0
Proponi il tuo prezzoProponi il tuo prezzo
Immobile valutato con T·Valuta

Classe Energetica

A4
A4
A4
A4
A4
A4
A4
A4
A4
EP globale non rinnovabile:
1.65 kW h/m² anno
EP globale rinnovabile:
33.02 kW h/m² anno
EP invernale del fabbricato:
EP estiva del fabbricato:
Anno di costruzione:
2023
Riscaldamento:
Autonomo
Tipo impianto:
A pavimento
Tipo alimentazione:
Pannelli

Ti interessa visionare l'immobile?

Fissa un appuntamento  Fissa un appuntamento

Richiedi informazioni

Clicca su Leggi per aprire l'informativa
* Questi campi sono obbligatori

Calcola il tuo mutuo

Semplice e senza impegno
Anticipo

( % )
Mutuo

( % )

pochi semplici passi

inserisci i tuoi dati
Questionario completato
Grazie per aver richiesto un appuntamento senza impegno con un nostro Consulente del Credito e Assicurativo.

Hai inserito correttamente tutti i dati necessari e a breve riceverai una e-mail con un link da convalidare per inviare i tuoi dati.
Affiliato
Studio Mugello Sas
Via Mazzini, 66 50032 Borgo San Lorenzo (FI)

Il nostro staff


  • Alessio Cenisio
    Affiliato
Via Mazzini, 66 50032 Borgo San Lorenzo (FI)
Zona: Mugello-Borgo San Lorenzo
Mostra su mappa
Orari: lun/ven 9.00-13.00; 15.30-20.00; sabato 10.00-13.00; 15.30-19.00; dom su appuntamento
Affiliato
Studio Mugello Sas
Via Mazzini, 66 50032 Borgo San Lorenzo (FI)

2026 Tecnocasa Franchising S.p.A. - P. IVA 08365160152 - Via Monte Bianco 60/A 20089 Rozzano (MI). Ogni agenzia ha un proprio titolare ed è autonoma. Privacy policy | Policy utilizzo | Cookie policy