Quadrilocale in vendita

Scarperia E San Piero, Via Sandro Pertini - Scarperia
€ 330.000
4 locali 4 locali
95 Mq 95 Mq
2 bagni 2 bagni

Quadrilocale in vendita

Scarperia E San Piero, Via Sandro Pertini - Scarperia

Descrizione annuncio

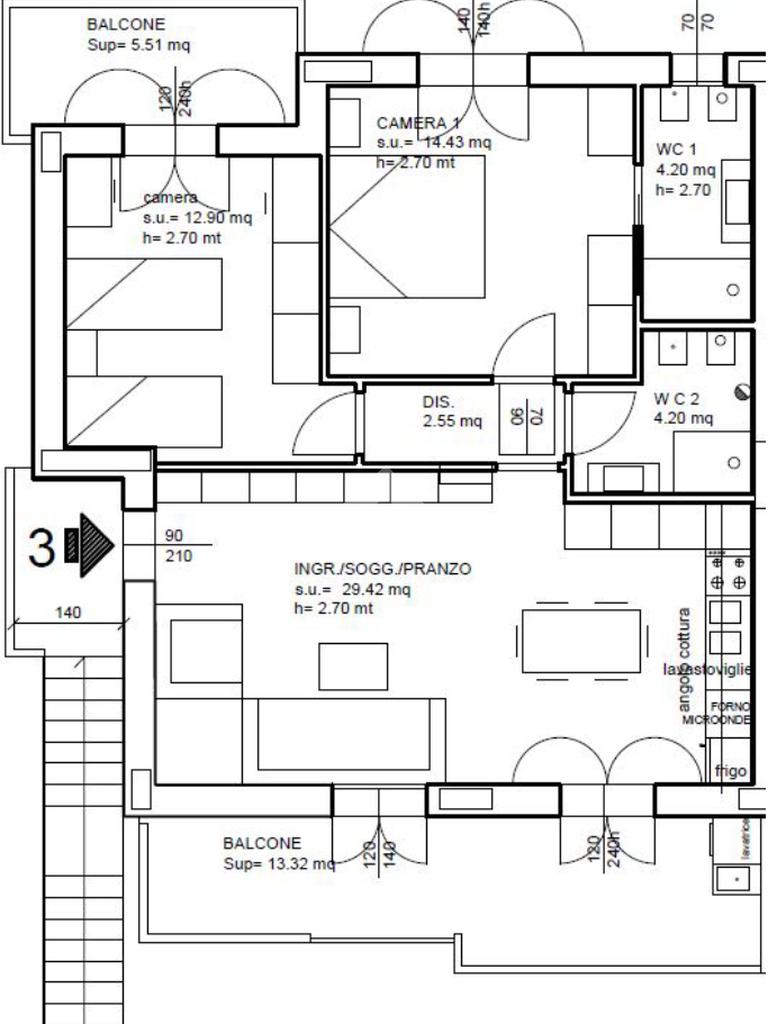
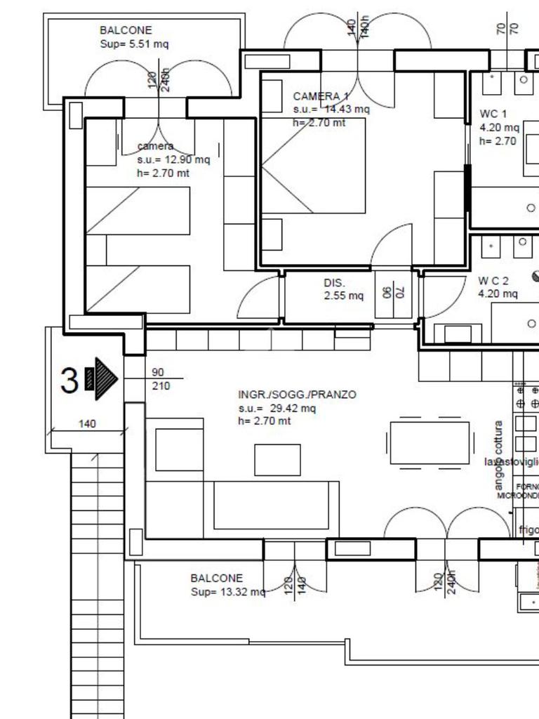
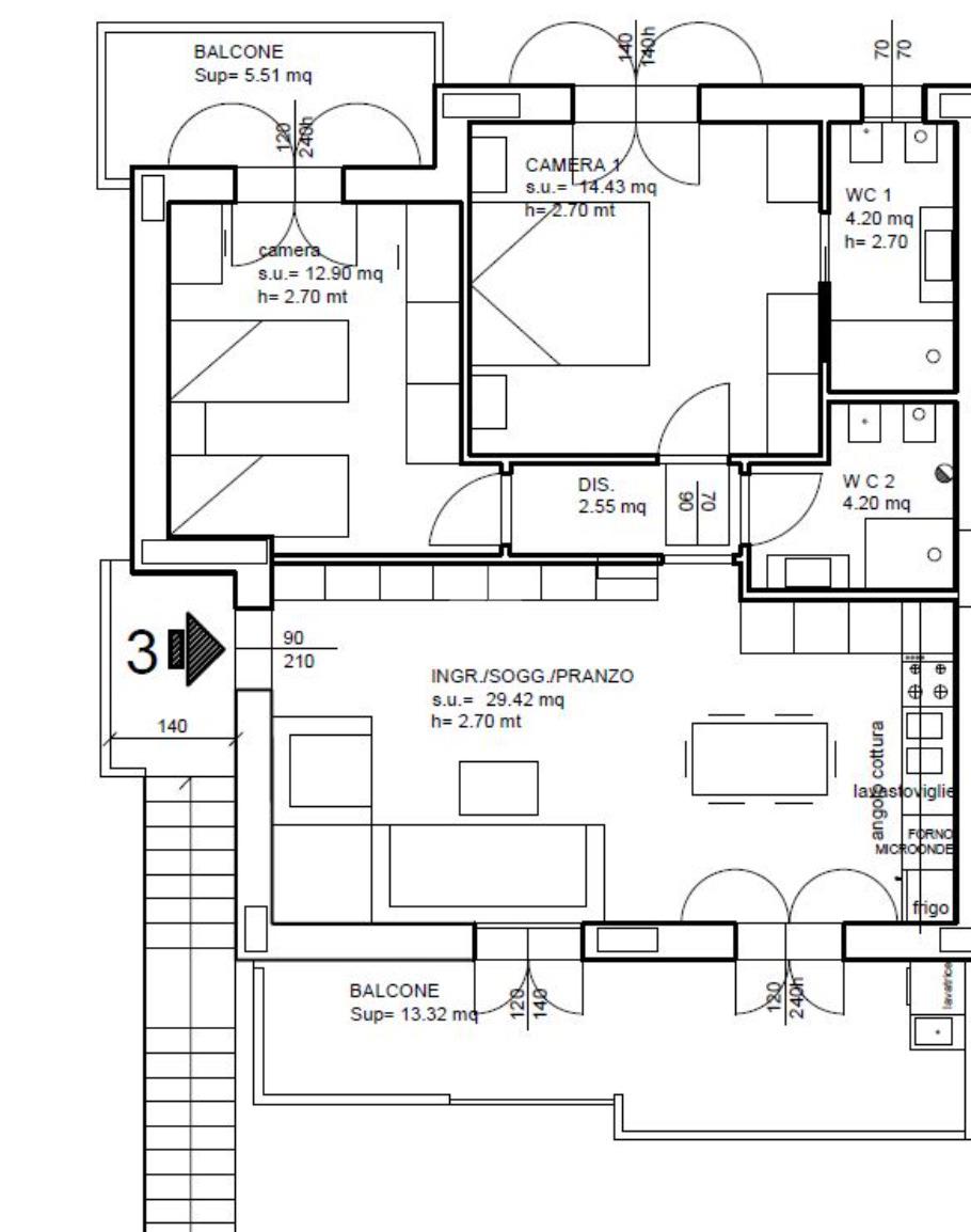
SCARPERIA: L'appartamento fa parte di un fabbricato quadrifamiliare di nuova realizzazione.

Primo piano ed ultimo.

Libero su tre lati con ingresso indipendente.

Ampia zona giorno open-space, due camere, doppi servizi, terrazze e giardino privato.

Grande garage al piano interrato.

Pannello fotovoltaico, riscaldamento e raffrescamento con fancoil.

Il valore del garage andrà a generare all'acquirente una detrazione fiscale da recuperare nei successivi dieci anni.

L'alta classe energetica potrà dare diritto di richiedere presso la banca il così detto 'mutuo green', ovvero mutui a tassi agevolati concessi per l'acquisto di immobili ad alta efficienza energetica.

Per maggiori informazioni, o per fissare una visita in cantiere, contattateci al numero 0558458093, inviateci un messaggio WhatsApp al numero 0558496287, oppure all'indirizzo che trovate nei nostri recapiti.

Mostra tutto

Nelle vicinanze

Farmacia Farmacia
Farmacia
3,0 Km
Negozi Negozi
Faini
2,9 Km
Ristoranti Ristoranti
Il Rustico
700 m
Fattoria il Palagio
1,9 Km
Mostra tutto

Caratteristiche

Rif.:
61146869
Piano:
1 di 1 (Piano basso)
Box:
1
Balconi:
1
Terrazzi:
1
Camere da letto:
2
Mostra tutto
Prezzo Prezzo
€ 330.000
Rata mutuo Rata mutuo
€ 1.568 / mese
Spese annue Spese annue
€ 0
Proponi il tuo prezzoProponi il tuo prezzo
Immobile valutato con T·Valuta

Classe Energetica

A1
A1
A1
A1
A1
A1
A1
A1
A1
EP globale non rinnovabile:
20.00 kW h/m² anno
EP globale rinnovabile:
0.00 kW h/m² anno
EP invernale del fabbricato:
EP estiva del fabbricato:
Anno di costruzione:
2025
Riscaldamento:
Autonomo
Tipo impianto:
Ad aria
Tipo alimentazione:
Pannelli

Ti interessa visionare l'immobile?

Fissa un appuntamento  Fissa un appuntamento

Richiedi informazioni

Clicca su Leggi per aprire l'informativa
* Questi campi sono obbligatori

Calcola il tuo mutuo

Semplice e senza impegno
Anticipo

( % )
Mutuo

( % )

pochi semplici passi

inserisci i tuoi dati
Questionario completato
Grazie per aver richiesto un appuntamento senza impegno con un nostro Consulente del Credito e Assicurativo.

Hai inserito correttamente tutti i dati necessari e a breve riceverai una e-mail con un link da convalidare per inviare i tuoi dati.
Affiliato
Studio Mugello Sas
Via Mazzini, 66 50032 Borgo San Lorenzo (FI)

Il nostro staff


  • Alessio Cenisio
    Affiliato
Via Mazzini, 66 50032 Borgo San Lorenzo (FI)
Zona: Mugello-Borgo San Lorenzo
Mostra su mappa
Orari: lun/ven 9.00-13.00; 15.30-20.00; sabato 10.00-13.00; 15.30-19.00; dom su appuntamento
Affiliato
Studio Mugello Sas
Via Mazzini, 66 50032 Borgo San Lorenzo (FI)

2026 Tecnocasa Franchising S.p.A. - P. IVA 08365160152 - Via Monte Bianco 60/A 20089 Rozzano (MI). Ogni agenzia ha un proprio titolare ed è autonoma. Privacy policy | Policy utilizzo | Cookie policy